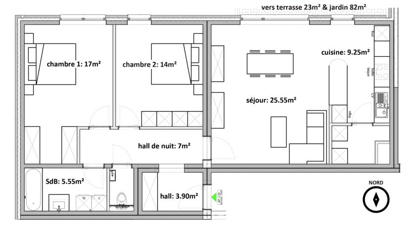
Rue du Bauloy 81 b001 - rez-de-jardin
-1.01 : appartement 2 chambres 102.5m² + terrasse 23m² et jardin 82m²